Page suivante
Page précédente
Jouy-aux-Arches (57130)

Maison 5 pièce(s) 3 chambre(s) 110 m²

1
1
1
179 000 €
Réf 4462

Située à proximité immédiate des commerces et des axes principaux, cette maison de village offre un fort potentiel pour les amateurs de rénovation à la recherche d’un bien évolutif et bien placé.

Elle se compose de trois chambres, d’un salon avec cheminée, d’une cuisine indépendante.Vous profiterez également d’une cuisine d’été, d’une agréable terrasse dont une partie est couverte, ainsi que d’un garage.

Des travaux de rafraîchissement et de mise au goût du jour sont à prévoir, mais les volumes généreux et la configuration fonctionnelle offrent de nombreuses possibilités d’aménagement.

Un bien à visiter sans hésiter pour en révéler tout le potentiel.

Pour plus de renseignements et pour organiser une visite, l’équipe de Carrara Immobilier se tient à votre entière disposition, avec plaisir.



Les informations sur les risques auxquels ce bien est exposé sont disponibles sur le site Géorisques

Bilan énergétique

Diagnostics énergetiques
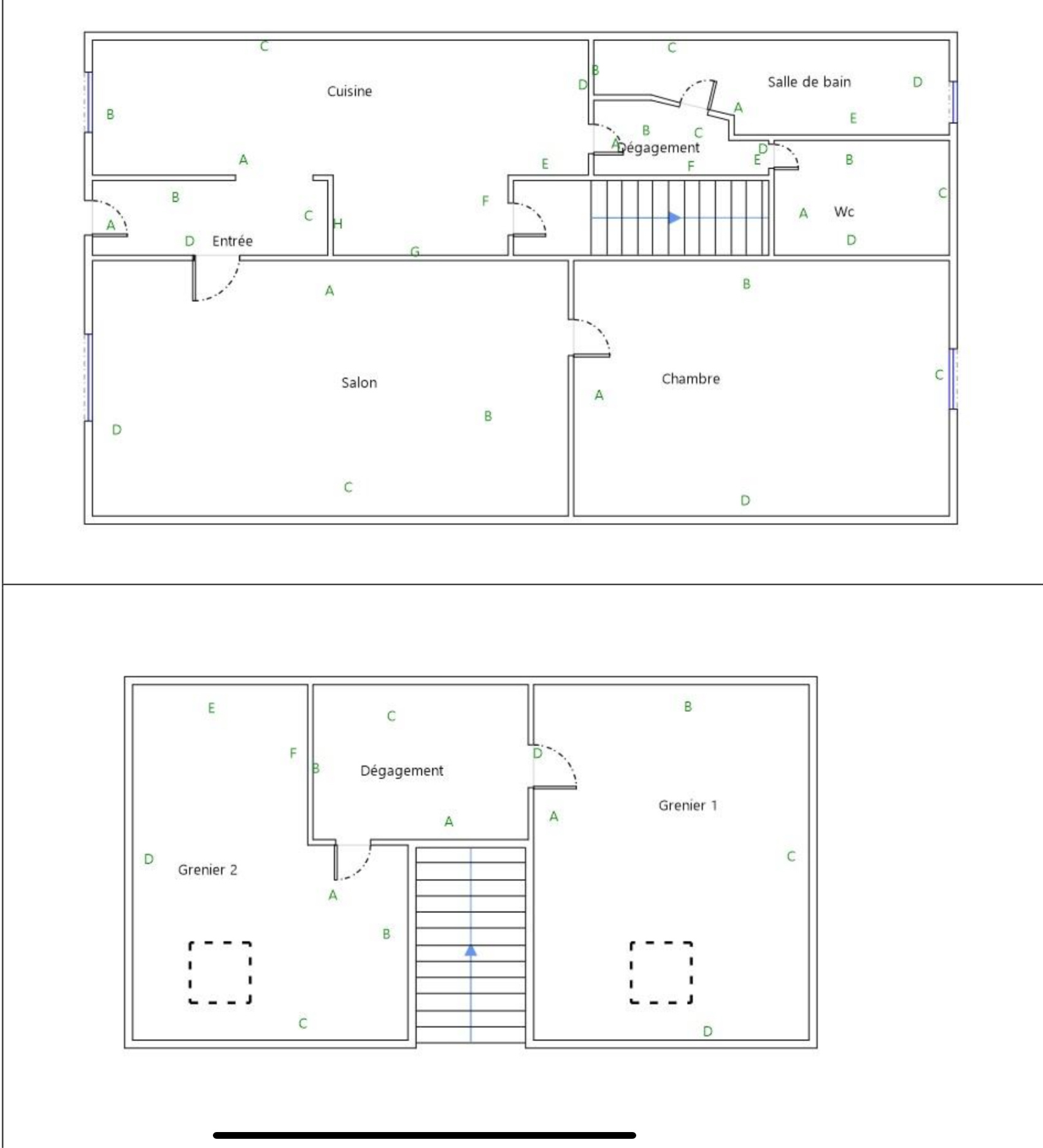
A propos de ce bien Caractéristiques de ce bien
  • Surface 110 m²
  • carrez 105 m²
  • séjour 20 m²
  • 3 chambre(s)
  • 1 salle(s) de bain
  • 1 salle(s) d'eau
  • construit en 1960
  • cuisine séparée (semi-équipée)
  • Chauffage individuel : chaudière (gaz de ville)
  • 1 garage(s)
  • exposition Est-Ouest
  • 2 niveau(x)
  • terrasse

Composition

Composition de ce bien

Rez-de-chaussée

  • entrée 3 m²
  • cuisine 19 m²
  • salle de bain 10.5 m²
  • chambre 17 m²
  • WC 2.5 m²

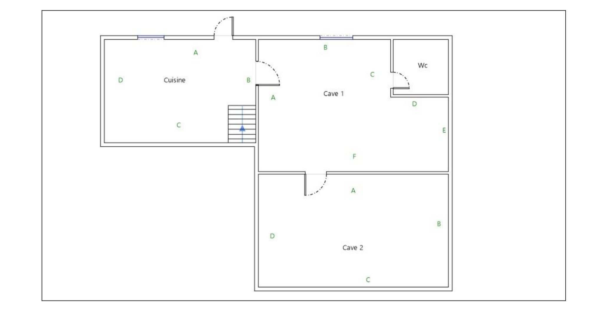
Etage -1

  • cuisine
  • cave

Etage 1

  • Palier 4 m²
  • chambre 20 m²
  • chambre 14 m²

Financier

Informations financières
Prix de vente honoraires TTC inclus 179 000 €
Prix net vendeur 165 116,30 €
Prix de vente honoraires TTC exclus 165 116,30 €
Honoraires TTC à la charge acquéreur 8,41 %

Simulation

Calcul des mensualités
* Champs obligatoires
CARRARA IMMOBILIER Agence